2024年7月27日,在印度召开的第46届联合国教科文组织世界遗产委员会会议上,由中国文化遗产研究院承担监测平台方案深化设计的“北京中轴线”被批准列入《世界遗产名录》,成为我国第40项世界文化遗产和第59项世界遗产。 北京中轴线位于北京老城中心,纵贯老城南北,由15处遗产构成要素构成,是统领整个老城规划格局的建筑与遗址的组合体。北京中轴线由古代皇家宫苑建筑、古代皇家祭祀建筑、古代城市管理设施、国家礼仪和公共建筑、居中道路遗存组成,始建于13世纪,成型于16世纪,此后不断完善,历经逾7个世纪,形成了的秩序井然、气势恢宏的城市建筑群,见证了影响中国都城营建传统两千余年的理想都城秩序。 自2021年起,为配合北京中轴线申遗工作,中国文化遗产研究院先后承担了“北京中轴线遗产点文物本体病害调研与评估”、“北京中轴线监测巡视制度体系建设方案”、“北京中轴线世界文化遗产监测与?;て教ńㄉ璺桨干罨杓啤钡纫幌盗邢钅俊?/font>
 图1 北京中轴线监测相关技术成果
监测是世界遗产有效管理体制的必要组成部分,是“规划、实施、监测、评估和反馈的循环机制”中不可或缺的工作机制,在《申遗文本》中专门要求单列一章(第六章)详细阐述申报遗产的监测工作状况,提供衡量、评估遗产保护状况的关键指标、其影响因素、遗产?;ご胧⑸蟛橹芷诩案涸鸹沟拿?。 在国家文物局的总体部署和指导下,中国文化遗产研究院集聚了院内外优秀资源,组建了涵盖古建筑?;?、世界遗产监测、信息化建设等专业技术背景的项目团队,通过现状评估勘察文物本体病害、?;す芾硐肿?,制定具体的监测需求,明确系统要求,落实设计内容,先后完成了相关项目成果,为北京中轴线“量身定做”了专门的监测策略措施、监测技术体系,扎实推进了北京中轴线世界文化遗产监测与?;て教ńㄉ?,为北京中轴线?;ず蜕暌殴ぷ鞯乃忱沟於己玫幕?。 一、分类的监测总体策略 由于北京中轴线遗产构成要素众多,?;す芾砗图嗖夤ぷ飨肿唇衔丛樱糠忠匾丫腥搿妒澜缫挪肌?,部分遗产要素由相关部门和行业管理,仅少数要素受到文物系统直接管理。为保证各遗产要素?;ぴ鹑稳硕寄懿扇∈实薄⒂行У募嗖庋彩哟胧?,参照《北京中轴线申报世界遗产名录文本》(以下简称《申遗文本》)、《北京中轴线?;す芾砉婊?022年-2035年)》(以下简称《管理规划》),北京中轴线管理监测工作把各遗产要素分为3类,分别按照不同的监测策略,实施不同的监测工作方法。 I类构成要素按照全面信息化模式开展监测对接工作。监测设备和人工采集数据直接进入北京中轴线?;ぜ嗖馄教ㄐ畔⑾低?,系统辅助监测数据的分析、研判和处置。 II类构成要素按照报表模式开展监测工作,定期按要求上报必要的监测数据。 III类构成要素由于已经被列入《世界遗产名录》,已经开展较为系统的监测工作,因此按照合作共享模式开展监测对接工作。
表格1 北京中轴线遗产要素监测方法分类表
|
编号 |
遗产构成要素 |
分类 |
|
1. |
钟鼓楼 |
I类 |
|
2. |
万宁桥 (作为大运河通惠河北京旧城段的构成要素) |
III类 |
|
3. |
景山 |
II类 |
|
4. |
故宫 |
III类 |
|
5. |
太庙 |
II类 |
|
6. |
社稷坛 |
I类 |
|
7. |
端门 |
II类 |
|
8. |
天安门 |
II类 |
|
9. |
外金水桥 |
II类 |
|
10. |
天安门广场及建筑群 |
II类 |
|
11. |
正阳门 |
I类 |
|
12. |
天坛 |
III类 |
|
13. |
先农坛 |
I类 |
|
14. |
中轴线南段道路遗存 |
II类 |
|
15. |
永定门 |
II类 |
表格数据来源:《北京中轴线监测巡视制度体系建设方案》,中国文化遗产研究院编制,北京市文物局委托研究项目成果。
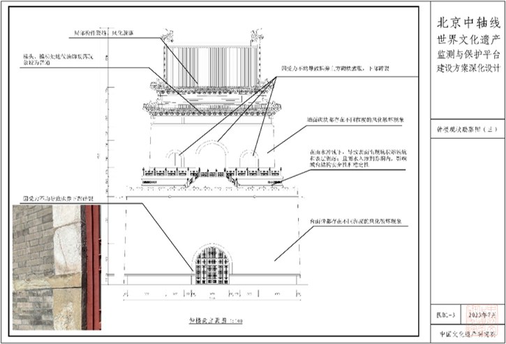
按照北京中轴线各个构成要素的不同?;ぷ纯觥⒉煌芾砘贫贫ǖ姆掷嗉嗖獠呗?,为因地制宜地落实世界遗产保护管理要求、充分开展系统性的世界遗产监测提供了工作机制保障。 二、根据文物勘察制定监测需求的技术路线 按照文物保护的工作原则,北京中轴线管理监测工作确定了以文物勘察和现状评估为依据,制定监测需求,进而确定监测系统建设要求的工作方法。 针对北京中轴线I类要素——钟鼓楼、社稷坛、正阳门、先农坛,北京中轴线管理监测工作在勘察评估上述4处要素的各类构成基础上,结合相关环境和影响因素的评估,制定全面的监测指标体系,确定要素构成本体监测措施(含设备点位和人工巡查点位),制定?;す芾硐喙丶嗖獯胧?/font>
 图2 北京中轴线监测技术路线示意图
以钟鼓楼为例,进行病害勘察、总结主要破坏因素和现存主要问题,其中包括鼓楼二层平座整体外闪、沉降,平座结构拔榫,钟楼南北立面部分砌块竖向和斜向裂缝等情况,以及地铁震动、暴雨等有直接影响的破坏因素。 根据上述本体勘察以及现状评估结果,参照中国世界文化遗产监测预警总平台要求的监测指标体系,按照病害严重程度和因素影响方式,进一步分类确定监测方法、监测指标、数据形式与采集方法、数据规则、监测周期等,并根据监测指标体系,分为三种具体监测方式。 ?。ㄒ唬┳ㄏ罴嗖猓ǘㄆ诮峁辜觳猓?br> 针对程度较重、影响较大的病害,采取专项监测措施。以钟鼓楼为例,针对平座整体歪闪、拔隼的情况,委托专业机构每年开展一次专项结构检测,采集技术数据,进行对比分析,得出评估结论。 (二)重点监测(安装监测设备) 针对程度较为严重的裂缝、渗漏等病害开展重点监测,安装设备自动化监测,密切关注病害发展情况。如钟鼓楼受到地铁震动影响,梁柱变形隐患较大,通过在鼓楼屋架内安装倾角仪等监测设备,自动收集监测数据,定期分析评估,及时掌握地铁震动影响。 ?。ㄈ┏9婕嗖猓ㄈ斯と粘Q膊椋?br> 针对程度一般的风化、裂缝等病害开展常规监测,采用人工定期巡查,将监测数据录入监测系统中,密切关注病害发展情况。以钟鼓楼为例,针对钟楼立面部分砌块风化破碎的情况,每季度开展定点拍照记录病害变化情况,定期分析评估。 此外,针对受到降雨影响的积水、渗漏等病害,开展降雨响应监测,在降雨过程中、降雨后,向相关管理机构推送巡查任务,站定点拍照记录,将积水、渗漏等病害情况录入监测系统中。
 图3 钟鼓楼现场勘察工作照
 图4 钟鼓楼现状勘察评估图
 图5 钟鼓楼监测设备点位与巡查点位图
 图6 钟鼓楼监测设备
三、初步建成了较为系统、完善的监测体系 基于上述策略和技术路线,北京中轴线初步建立了较为系统、完善的保护监测体系,建成了旨在改善?;?、日常维护、灾害风险和旅游管理的监测系统。其主要指标分为三类:?;ぷ纯觥⒒肪程跫凸芾硐低?。这些指标又细分为六个方面:遗产布局、遗产结构、自然环境、社会环境、管理以及规章制度。 2023年8月,北京中轴线监测工作得到国际古迹遗址理事会(ICOMOS)现场技术评估专家的高度评价,在后续ICOMOS提交给世界遗产委员会并作为委员会决定申报遗产是否列入《世界遗产名录》的重要支撑文件中认为,北京中轴线的监测系统是充分且足够的,不仅包括了所有申报遗产价值特征的保存状况,还包括了管理实施和相应的具体流程,以及必要的管理协调机制。这表明由中国文化遗产研究院负责深化设计的北京中轴线监测预警系统受到了国际组织的认可和肯定,显示了中国文化遗产研究院作为世界文化遗产国家队在监测管理、保护研究等方面的综合实力和专业优势,为北京中轴线最终列入《世界遗产名录》发挥了不可或缺的作用。 四、北京中轴线监测的新起点、新征程、新要求 随着成功列入《世界遗产名录》,北京中轴线的?;ぜ嗖夤ぷ饕步凑帐澜缫挪母弑曜?、高要求进一步提升工作力度,按照国际古迹遗址理事会的评估要求,在以下几个方面着力提升工作水平。 ?。ㄒ唬┗谙钟斜;ぜ嗖馓逑?,明确参与机制,建立健全便于当地居民和社区支持、参与?;す芾砑嗖獾墓ぷ髌教ā?br> ?。ǘ┙徊浇∪;ぜ嗖夤ぷ鞔胧?,继续实施可持续的旅游管理措施,以减轻对遗产地、缓冲区及其居民的影响。 (三)依托数字化?;ぜ嗖馄教?,深化开展遗产阐释和展示工作,宣传北京中轴线的世界遗产价值。 ?。ㄋ模┩晟剖只;ぜ嗖馄教ǎㄉ柘钅康囊挪跋炱拦捞峁┘嗖馐莘矫娴闹С?。 申遗成功不是终点,是北京中轴线?;す芾砉ぷ餍碌钠鸬?。面对新阶段的新挑战,中国文化遗产研究院将继续发挥世界文化遗产国家研究中心和总平台的引领作用,基于国内外世界文化遗产?;ば问频恼灏盐蘸蜕羁谭治觯约嗖馕侄?,为包括北京中轴线在内的我国文化遗产的保护传承工作贡献更多的力量。 |